
Prostor
Prostor Mediteranskog plesnog centra sastoji se od;
- dvorane / studija za rad veličine 9,75 x 22 metara
- galerije iznad dvorane u funkciji prostora za odmor veličine 9,75 x 5,7 metara
- prostora ispod galerije u funkciji foyera veličine 9,75 x 5,7 metara
- garderobe za izvođače
- skladišta
- čajne kuhinje
- sanitarnog čvora (toalet, umivaonik, tuš kabina, perilica rublja)
Mediteranski plesni centar – Tehničke specifikacije
Mediteranski plesni centar (MPC) nije konvencionalno kazalište, već jedinstven i multifunkcionalan prostor sa sadržajima i tehničkim karakteristikama opisanima u nastavku teksta.
Prostorne karakteristike
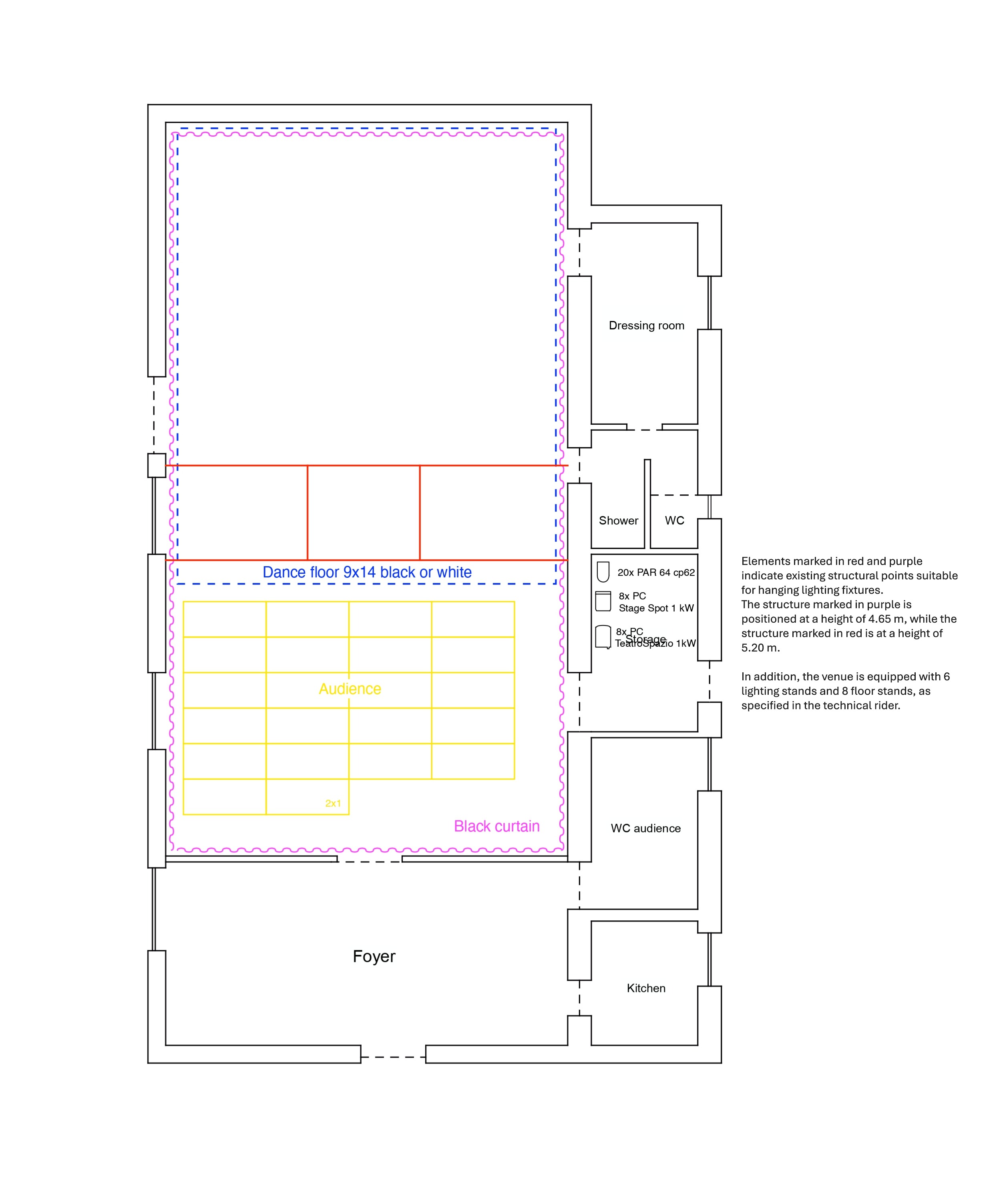
Tlocrt pogledajte OVDJE.
Širina: 9,75 metara
Dubina: 22,14 metara (od prednjeg ruba galerije do stražnjeg zida)
Visina: 5,63 metra (od poda do drvene grede)
Pod: Drveni, svijetložute boje
Zidovi:
Lijevi zid: Bijeli, s prozorima i vratima koji propuštaju dnevno svjetlo
Stražnji i desni zid: Sive boje
Foyer: Smješten ispod galerijskog prostora
Sustav zastora
Uz cijeli zid dvorane postavljen je crni kazališni zastor visine cca 4,5 metra, montiran na šinskom sustavu.
Zastor se može pomicati i koristiti za definiranje izvedbenog prostora te stvaranje black box konfiguracije.
Plesni pod
Dimenzije: 9,75 m (širina) x 14 m (dubina)
Reverzibilni plesni pod – crna s jedne strane, bijela s druge
Publika / tribine
Modularne platforme dimenzija 2 x 1 metar
Postavljene na pet visinskih razina: 20 cm, 40 cm, 60 cm, 80 cm i 100 cm
Prvi red publike je na podu, otprilike 14 metara od stražnjeg zida
Rasvjetna oprema
Dimeri:12 kanala, 10A po kanalu (Elsis 32A)
2 kanala, 6A po kanalu (Showtech 10A)
* nije moguće spajanje dodatnih dimera
Reflektori:
8 x PC Teatro Spazio 1kW s pjeskarenom lećom (za ovaj tip uređaja nema klapni)
8 x PC Stage Spot 1kW s pjeskarenom lećom (za ovaj tip uređaja ima 2x klapne)
16 x PAR 64 CP62
5 x halogenih svjetiljki, 120W
Stativi i montaža:
6 x Manfrotto 126BSU stativa (T-bar ili spigot)
10 x podnih stalaka
Gornja montaža: osnovna metalna konstrukcija iznad prvog reda publike (visina cca 5 metara)
Rasvjetna konzola:
ETC Nomad (2 univerzuma)
Napomene:
* Nema fiksnog kazališnog trussa.
* filteri nisu uključeni – izvođačka ekipa ih osigurava samostalno.
Zvučna oprema
2 x JBL EON 610 aktivni dvosistemski zvučnici (s pripadajućim kabelima)
2 x stalak za zvučnike
Wharfedale Pro Connect 802USB
Audio sučelje: Focusrite Scarlett 4i4





